Woodside Independence Hall and Town Hall

September 2025

The e-Woodsider is a monthly, digital publication that includes current information and news, program and project updates, upcoming events, Council action recaps, and more!

To subscribe to receive this publication and other Town information directly to your inbox, visit www.woodsideca.gov/subscribe. 

Photo of Woodside Town Manager Jason Ledbetter

Town Manager's Note

Over Labor Day weekend, two serious incidents occurred in Woodside. Below is a summary of the incidents and the actions the Town is taking to address them. 

Cyclist Death on Highway 84

On the evening of Friday, August 29, 2025, a bicyclist was killed in a collision at the intersection of La Honda Road and Skyline Boulevard. This location is commonly referred to locally as the 4 corners and is the intersection near Alice’s Restaurant. The community has expressed concern that an engineered solution is required to improve safety to this intersection. The Town staff and elected officials have engaged the County of San Mateo staff and elected officials, the State of California elected officials and the California Department of Transportation agency (commonly referred to as Caltrans) to express our interest in a long-term solution to safety at this intersection. Since this incident, the Town has received feedback and information relating to a possible solution from Caltrans. We have been provided with information that Caltrans is moving forward on a capital improvement project to address these safety concerns. As we receive more details on this project we will communicate that to our residents.

Edgewood / I-280 Fire

At approximately 4:56pm on Saturday, August 30th, 2025, a car caught fire on I-280 and spread to the vegetation at I-280 and Farm Hill Boulevard. Multiple agencies were dispatched, and the progress was stopped within a few hours. The Town was in communication with the Fire Chief and the Sheriff’s Captain during this incident and was awaiting any special instruction in case Town Hall needed to be opened as a community resource. A unified response from the Woodside Fire Protection District and CalFire resulted in CalFire providing an OV-10 Air Tactical Aircraft, 2 Air Tankers, 2 Helicopters, 3 Wildland Fire Engines, 2 Hand crews and a Dozer. Combined with Woodside Fire Protection District’s team and resources, this incredible response kept the community safe. 

We have heard from members of the community concerning an issue receiving alerts from the SMC Alert system. The Town followed up with the San Mateo County Department of Emergency Management, the Woodside Fire Protection District Fire Chief, the Sheriff’s Captain who manages our Law Enforcement team, and the County Administrator to highlight our citizens’ concern over this issue. We have been informed that these agencies are currently working to summarize this problem and develop solutions to resolve this issue. As that solution is communicated to Town staff, we will provide it to our residents and the wider Woodside community. 

The Town is currently working on multiple items in relation to Emergency Preparedness and Fire safety. We will be bringing a vegetation removal contract for Council consideration that will propose a $90k allocation to fuel reduction along our emergency routes in the right-of-way. We have completed a Woodside Wildfire Evacuation Study that we will be using to educate the community in individual neighborhoods and how each neighborhood can best prepare for a future emergency. We will also be running an internal tabletop exercise for emergency preparedness with staff in October and are planning on facilitating a community exercise with the Volunteer Emergency Preparedness Committee in the first or second quarter of 2026. 

My door is open if you have any questions or concerns related to either of these incidents or the Town’s efforts in regard to emergency preparedness.

~ Jason Ledbetter, Town Manager

Town Council Meetings


Recent Town Council agendas and minutes are available at www.woodsideca.gov/agendacenter.

Recent Actions by the Town Council:

  • Approved the Law Enforcement Services Contract between the San Mateo County Sheriff’s Office and the Town of Woodside
  • Facilitated the first of four Community Advisory Committee (CAC) meetings for the Town Center Area Plan (TCAP) Update www.woodsideca.gov/TCAP


On the Horizon:

  • Town Center Area Plan (TCAP) Update Open House and Pop-up Events  - see dates in article below
  • Woodside Fire Fuel Mitigation Program Contract (September 23)

Town Updates and Alerts

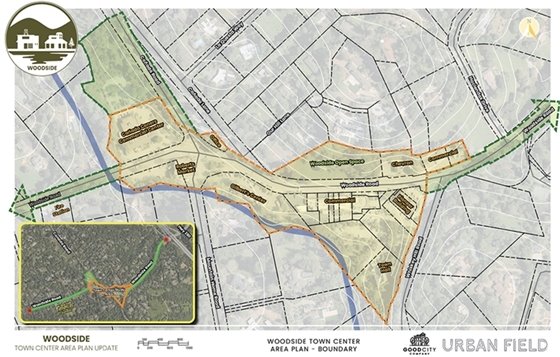
Town Center Area Plan Boundary

Help Shape the Future of the Town Center!

Join us at Upcoming Community Engagement Events for the

Town Center Area Plan Update (TCAP)

Pop-Up Events - drop by anytime! 
The Town of Woodside is hosting three informal pop-ups about the TCAP Update at local gathering places. A pop-up is a casual opportunity to learn more about the project, ask questions, or leave a post it note with your thoughts and opinions. Swing by a pop-up for a quick chat!

  • Saturday, September 13, Noon to 2 pm: in front of the Village Hub Coffee Bar, 3154 Woodside Road (Village Church)
  • Thursday, September 25, 3 to 5 pm: right outside Emily Joubert Home & Garden at Cañada Corners parking lot, 3036 Woodside Road
  • Sunday, October 12, 10:30 am to 12:30 pm: Day of the Horse Fair at the Town Hall parking lot, 2955 Woodside Road


Community Open House #1
When: Thursday, October 9, 6 to 8 pm
Where: Woodside Elementary School, Sellman Gym, 3195 Woodside 

Come to our public open house to dive deeper on the Town Center and explore interactive stations, review what we’ve heard and learned so far, and share your feedback about the Town Center’s future with staff and the consultant team. Stay for a few minutes or the full two hours. The open house is focused on key issues and constraints as well as the best opportunities for improvements and enhancements to the Town Center. Open House stations will include Information and Interactive maps on:

  • Goals & Vision, Land Use & Housing, Community-Serving Businesses & Public Spaces, and Transportation & Parking.


Stop by the pop-ups or come to the open house to share your ideas and help chart a shared path forward! Your input will directly shape the next phase of the Area Plan update.

Visit the Town Center Area Plan Project website for more info!

TCAP Survey QR Code

Reminder - don't forget to take the TCAP online survey by Wednesday, October 15!

The Town of Woodside is updating the Woodside Town Center Area Plan, and we want to hear from you! This is your chance to share what you love, what could be better, and what you’d like to see in the heart of our community. The refreshed plan will reflect Woodside’s values and build on what people already love about the Town Center.

Your ideas and suggestions will guide improvements to the streets, public spaces, circulation, parking, and buildings in the Town Center.

Click here or scan the QR code to take this short, 5-minute survey! 


Flyer - Spirit of Woodside Contest

Spirit of Woodside Youth Photography Contest

Entry Deadline October 1, 2025

Now that we are back from the summer break, don't forget to have your child(ren) enter the Spirit of Woodside Youth Photography Contest! Enter for a chance to win a $100 shopping spree at Michael's! Contest winners will also be included in a special art exhibit and reception at the November First Friday event on November 7 and will receive a certificate of recognition and be featured on the Woodside Town Website. 

The Town, in conjunction with its Arts & Culture and Environment & Open Space Committees, is pleased to sponsor the first Spirit of Woodside Photography Contest.

Visit the Town's website for more information including how to submit entries.


Image of Zotts to Tots Race Route 2025

Road Closure in Portola Valley for Annual Zotts to Tots Race

Saturday, September 20 from 9:30 to 11:30 am

Note that portions of Alpine and Portola Roads (from Rossotti’s Alpine Inn to the Portola Valley Town Center) will be closed along the race route beginning at 9:30am until approximately 11:30am.

Please be careful when driving around Portola Valley on Saturday as there will be a large number of families, runners, bikers, and equestrians making their way along the trail to the picnic at the Portola Valley Town Center.

Click here for more information about the Race.

Flyer - Family Fun Horse Fair 2025

Woodside Day of the Horse 2025 - Safari - Into the Wild

The Woodside Day of the Horse annually celebrates the unique equestrian heritage of Woodside and the extraordinary contribution horses make to the quality of life throughout San Mateo County. Made possible by a public-private partnership of Woodside-area Horse Owners Association (WHOA!), the Town of Woodside and our generous Sponsors and Volunteers. This year's event will include:

Saturday, October 11 - Progressive Trail Ride
11 am to 3 pm, After Party from 3 to 6 pm

Participants from all over California enjoy this legendary trail ride that gives riders a glimpse of rural America right in the heart of Silicon Valley. The official route is on the Woodside Town Trails and Ride Stops include both public and private horse-friendly locations, concentrating in the areas near central Woodside with a trail loop at the Horse Park at Woodside as well.

Sunday, October 12 - Family-Fun Horse Fair
10:30 am to 1:30 pm at 2955 Woodside Road

The Horse Fair located near the Woodside Town Hall draws more than 1000 people for free equestrian activities and info booths designed to encourage and educate the next generation of horse enthusiasts!

Click here for more information and to register for the trail ride.


Photo of 2025 Co-Ed Softball League Champions - the Green Team

2025 Co-Ed Softball League Champions

Congratulations to the Green Team - our 2025 Champions! The Green Team outscored Navy Blue, 8 to 6, in the Championship game.

Check out the final scores and more photos on the Town website.

Updates from Woodside Fire Protection District (WFPD)

Cover of Woodside Fire Districts September Newsletter

Home Assessment Program - You can Help!

WFPD is still actively working to complete Zones 1–4 of their home assessments. Descriptions of each zone can be found on our website for reference. One of our biggest challenges has been reaching residents when they’re not home. To help us expedite the process, we’re asking neighbors to organize their street or neighborhood into groups and then call us to schedule a date when everyone can be home. Your participation is key to keeping our community safe and fire-prepared!

Check the WFPD website for the September edition of their newsletter!

Click here to schedule your Home Assessment, view your report or learn more about the program.

Graphic - September is National Preparedness Month

September is National Preparedness Month

Talking about bad things that could happen like a disaster or emergency isn’t always easy. We may think we’re protecting the people we love by avoiding these conversations, but they are important to start taking steps to get ready and stay safe. 

Starting a conversation today can help you and your family to take more actions to prepare. By taking simple steps, you can build your preparedness at your own pace:

  • Set aside a time when everyone is calm and relaxed. 
  • It may help to hold the discussions over a set time period, so decisions aren’t rushed, and people feel more comfortable talking about the topic. 
  • Talk about steps you’ve taken to prepare and encourage others to ask questions about preparedness actions that might work for them.


One place to start the conversation is by building a kit to prepare for an emergency. After an emergency, you may need to survive on your own for several days. Being prepared means having your own food, water and other supplies to last for several days. A disaster supplies kit is a collection of basic items your household may need in the event of an emergency.

Graphic of an emergency kit

Visit the WPV-Ready Store for ready-made-kits you can purchase and the WPV-Ready Website for more information on how to prepare your family.

"Ready" is a National public service campaign designed to educate and empower the American people to prepare for, respond to and mitigate emergencies and disasters. Visit their website for more information on National Preparedness Month and how to Build a Kit.

Woodside Fire Protection District
Upcoming Trainings and Workshops!

CERT logo

CERT Basic Training – Starts September 15!

Monday Evenings 6:30 to 9:30 pm

Ladera Recreation District


Join us for Community Emergency Response Team (CERT) Basic Training, held Monday evenings from September 15 to October 27, plus one Saturday session on October 25. Learn how to help yourself, your family, and your neighborhood when disasters strike, and emergency services may be delayed.

  • Location: Ladera Recreation District, 150 Andeta Way, Portola Valley
    $35 registration includes hands-on training, CERT backpack, Field Guide, and a Family First Aid Kit. Refreshments provided!
  • Topics: include disaster preparedness, fire safety, light search & rescue, medical operations, and more.

Click here to learn more and Register! 

Volunteer Opportunity – Help with CERT Training Moulage

WFPD is looking for volunteers to help with moulage (injury simulation makeup) for upcoming CERT exercises. No experience is necessary!

They will provide supplies and teach you basic techniques. This is a fun and creative way to support our training!

If you’re interested, please email Selena Brown.

Flyer - WPV-Ready Communicator Training

WPV-Ready Ready Net Communicator Training

Become an emergency radio operator in your community!

Tuesday, September 30 from 6:30 to 9:30 pm

Fire Station No. 19: 4091 Jefferson Ave, Redwood City

Effective communications are often cited by professionals as the greatest logistical problem during emergencies. While cell phones, text messaging and Internet access are convenient communication tools, they are subject to outages during disasters. Two-way radios provide a back-up communications method that can be used to pass critical information when other systems are down.

Within the Woodside Fire Protection District, WPV-Ready Communicators are citizen volunteers trained to use their own two-way radios to communicate with the WPV-CERT Community Emergency Response Team (CERT) and the Fire District using radios and other communications methods. They act as communication gateways between residents in their neighborhood and the WPV-CERT and WFPD during times of emergency to exchange critical information.

The WPV-Ready Communicator Training Class Will Cover:

  • Your role as a WPV-Ready Communicator
  • Radio systems in use within the Woodside Fire Protection District
  • How to use a 2-way handheld radio
  • Proper radio techniques and phraseology
  • Standard message forms and message passing techniques 
  • How to maintain your own situational awareness during emergencies
     

Click here to RSVP for the training.

Click here for flyer with FAQ's and volunteer position description.

Regional News and Opportunities

Image with California Flag Statewide Special Election

County Readies for November 4, 2025 Statewide Special Election

  • Last day to register to vote is Monday, October 20 — after this date, a Conditional Voter Registration must be used in-person at a Vote Center.
  • Information about the Proposition will be in the State Voter Information Guide. The County Voter Information Guide will not contain the text of the Proposition. Voters can see the English text here.
  • Voters can expect to receive their ballots in October.
  • Vote Centers:
    • First two Vote Centers open on October 6
    • Total of eight Vote Centers will be open starting October 25
    • Total of 15 Vote Centers will be open starting November 1
    • 15 Vote Centers will be open on Election Day, Tuesday, November 4 from 7 am to 8 pm
  • Total of 46 Drop Boxes will be open starting October 6
  • Vote By Mail ballots can be received until November 12 as long as they are postmarked by Tuesday, November 4 (Election Day).


Get Vote Ready: check your voter status, update your information, or register to vote at https://registertovote.ca.gov

Poster - SMC Suicide Prevention Month

September is Suicide Prevention Month

For 2025, San Mateo County and partners are promoting the statewide theme: “Support, Your Way.”

What if suicide prevention could feel human, honest, and self-assured, all while being inclusive of the different ways people can find support. Rather than centering fear, crisis, or clinical language, this theme is about agency, particularly at vulnerable moments when people feel like they have none. It reflects a cultural truth that people want help on their own terms, and flips the understanding of asking for help not as a loss of control—but as a regaining of it.

It’s not about prescribing what help should look like. It’s about validating the choice to reach out for help, understanding that support can look different for everyone, and reframing the act of asking for support as taking control—not losing it.

Support, Your Way- Tips and Reminders:

  • Getting help means taking control. Asking for support isn’t a breakdown. It’s a breakthrough—and it can look like whatever you need it to.
  • Support looks different for everyone. Some people talk to a peer. Some text 988. Some open up to a friend. Some start therapy. For some, it’s a mix of all of these options. There’s no one-size-fits-all. You get to choose what feels safe.
  • You don’t need to wait for a crisis. Reaching out before things spiral is just as valid as reaching out in an emergency. It’s always the right time to check in or ask for help. 
  • There’s no wrong way to ask for help. Even if you don’t know what to say. Even if it’s messy.

For immediate help, you can reach out for 24/7 free confidential crisis support:  

  • Call the San Mateo County Crisis Line (run by Starvista) at 650-579-0350 or visit sanmateocrisis.org 
    • Callers can also reach the San Mateo County Mobile Crisis Response Team by calling the Crisis Hotline.
  • Text “BAY” to 741741
  • National 988 Suicide and Crisis Lifeline: call or text 988


Visit the San Mateo County Health's website for more information and resources.

Earthquake Brace and Bolt Logo

Earthquake Brace + Bolt Program Registration
Open through Wednesday, October 1

The Earthquake Brace + Bolt (EBB) Program opened for registration on August 20 and runs through October 1.

In an EBB seismic retrofit, the foundation is "bolted" to the frame of the house, and when there are walls called "cripple walls" in the crawl space under the house, they are "braced" with plywood. This helps prevent the house from sliding or toppling off of its foundation during an earthquake. An EBB seismic retrofit is only done on wood-framed, pre-1980 homes with a raised foundation.

Qualifying homeowners may receive up to $3,000 in grant funding for a seismic retrofit of their home to reduce the risk of earthquake damage. 

Non-owner-occupied residences now eligible!
Qualified non-owner-occupied residences are now eligible for an EBB retrofit during the August 20 - October 1 open registration period.

Visit earthquakebracebolt.com to learn more or click here to register.

From Our Agency Partners


GreenWaste Recovery Logo

Reminders from GreenWaste

Image of Proper Foam Sorting

Other GreenWaste Sorting or Service Questions?

Check out GreenWaste's What Goes Where guide to find out what belongs in each of your carts and review the Service Guide for additional services such as the two, free on-call cleanups per year!

Image of women and child plugging a charger into an EV

Exclusive EV Deals for a Limited Time

Peninsula Clean Energy is partnering with Ride and Drive Clean to offer exclusive discounts on select new electric vehicles. To maximize your savings, including up to $7,500 in federal tax credits, purchase or lease your new EV by September 30, 2025.

Sign up now and join a free webinar to learn how to get your EV discounts: 


Photo of Yellowjacket Nest

Yellowjackets? San Mateo County Mosquito & Vector Control District is Here to Help!

San Mateo County Mosquito & Vector Control District has gotten more than twice as many service requests for yellowjacket nests as usual. They can help (for free!) if you know the location of the nest. Some tips and info:

  • Yellowjackets are most active between about 10 am and 4 pm. Check for the nest during this time frame.
  • Our most common yellowjackets live in holes in the ground. Sometime the holes are hidden by ivy and other plants.
  • Yellowjackets enter and exit the hole looking like planes landing and taking off from an airport. Like a tiny SFO!
  • Placing a small flag or other marker near the nest entrance will help staff quickly find and treat the nest when they arrive. Be careful! You should NOT place the marker directly on the nest - in the general area is fine!


Call 650-344-8592 or submit a request online by filling out a Service Request form. Staff typically visit the next business day. If you've marked the nest, then you don't even need to be home when they stop by to treat the nest.

Special Events in September and October

California Coastal Clean Up Day Graphic 2025

 California Coastal Cleanup 2025

Main Event Saturday, September 20 from 9 am to Noon

Coastal Cleanup 2025 in San Mateo County is coming up and the environment needs your help to pick up litter pollution! 

The Cleanup will happen all month-long in September or you can join a group cleanup site at the main event on Saturday, September 20, 9 am to Noon.

Ways to Participate:

  1. Join a group cleanup on September 20th at one of over 30 sites to choose from. Find a site near you and register with a site captain. Complete a digital waiver and save the confirmation email to show your site captain. 
  2. Can't make it on the 20th? Lead a self-led neighborhood cleanup throughout the month of September. Learn more at smchealth.org/cleanup. Help us promote the event by sharing our social media posts from @smchealth or from our toolkit. 
  3. Download the Clean Swell App in the Apple Store or Google Play Store before the event so you are all set to record litter you collect.


What's a trashure hunt? 
Small treasure chests will be hidden at select cleanup locations. If you find the treasure chest, bring it to your site captain and claim your prize (prizes vary by location)! 

Find a Cleanup site and register here!

Flyer - Our Case for the Future Webinar

Our Case for the Future Webinar

Wednesday, September 14 from 5:30 to 6:30 pm

Join us for a free webinar on September 24 to meet the youth plaintiffs and lead attorney from Our Children's Trust who are suing the federal government over failure to address climate change. They are asking the courts to do what Congress won't do.

This event will highlight the powerful role of young people in shaping the climate movement through both legal and grassroots avenues.

  • Attorney Philip Gregory will share a short presentation on the Lighthiser v. Trump case, its legal foundation and what’s at stake.
  • Youth plaintiffs will share their personal motivations for joining the case and hopes for the outcome.
  • Local opportunities will be offered to stay involved or support youth-led and policy-driven action.

Click here to register for the webinar.


Image of two older adults with thought bubbles on housing options

Senior Seminar – Lifestyle Options

Saturday, September 27, 2025 from 10 am to Noon

9:30 am - Coffee and Pastries

Jennings Pavilion, Holbrook Palmer Park, Atherton

Housing choices (stay or move) are a life-changing decision for Seniors. What do we need now? What if my spouse needs special care?

Learn about Stay at Home improvement options, Senior Living Communities with Assisted Living and Memory care options, and Facilities specific to Memory Care.

Check the Town website for more information!

The “Lifestyle Options” Seminar is supported by the Towns of Atherton, Woodside and Portola Valley.

Flyer - Woodside Fire Foundation Chili Cook Off

Woodside-Portola Valley Fire Protection Foundation
Chili Cook Off & BBQ at Runnymede Farm

Sunday, September 28th from 3 to 7 pm

Help Support the Woodside-Portola Valley Fire Protection Foundation and join us for a fun-filled day of delicious food and friendly competition at the beautiful Runnymede Sculpture Farm. We will have kids firefighter games, self-guided sculpture farm tours, an auction, music and of course a very competitive chili contest hosted and judged by our very own Woodside Firefighters! Mark your calendars and come hungry!

Click here for tickets!

Flyer - SSMC Indicators Report Launch

Sustainability San Mateo County 2025 Indicators Report Launch

Wednesday, October 1 from 9 to 11 am

Sobrato Center, 350 Twin Dolphin Dr, Redwood City

You are invited to join Sustainable San Mateo County for the launch of their 2025 Indicators Report: Local Food Actions for A Cooler Future.

Food is a major driver of greenhouse gas emissions, from the way it’s produced and consumed to how waste is managed. Our food systems account for an estimated 34% of total global emissions. 

While many regions have made progress in cutting emissions from buildings, energy and transportation, emissions linked to food continue to rise globally. Local governments, institutions and communities can all play a critical role in driving change.

At this year’s launch, you will learn what’s driving emissions from our food system locally and what we need to do to change this. You will hear from experts how they are already tackling food waste and recovery and making our diets more sustainable. And you will walk away with a clear set of actions to reduce food-related climate impacts in your community.

Click here to register for the event!

First Friday Flyer

Visit the Woodside Arts & Culture Committee's YouTube Channel to view recordings of past events.

NAMIWalks San Mateo County Event Graphic

Walking For Mental Health - NAMIWalks of San Mateo County

Saturday, October 4

Seal Point Park, San Mateo

Join the National Alliance on Mental Illness (NAMI) San Mateo County as we walk together in support of mental health and to raise funds for our free programs! Get ready to be inspired and enjoy the fun as NAMIWalks returns to San Mateo County on Saturday, October 4 at Seal Point Park, San Mateo. This free, annual event features a 1k or 5k walk along the beautiful Bay, music, food, a community resource fair, wellness programming, a kids’ zone and, for the first time ever, a pet contest!

Whether you’re an advocate, passionate about mental health, and simply looking to connect with a supportive community, everyone is welcome! We invite you to create a team, join a team or come as an individual participant, regardless, there is a place for you. 

To get involved, visit www.namiwalks.org/sanmateo to come walk with us! 

100% of funds raised go directly back into the free mental health advocacy, support and education that NAMI SMC provides to families, individuals, workplaces, and schools across the community.

Flyer - Acterra Green at Home Tour

Peninsula Green@Home Tour 

Saturday, October 18 from 11 am to 3 pm

Acterra is proud to present Peninsula & South Bay Green@Home Tours 2025! This is a free, community-powered event that invites the public to explore innovative, electrified homes. On Saturday, October 18th, from 11 am to 3 pm explore homes throughout San Mateo and Santa Clara Counties, ranging from new construction to those transitioning from gas. Gain valuable insights from tour hosts on appliance selection, contractor decisions, installation processes, tax credits and incentives, making your transition to electric living informed and cost-effective.

Attendees will have the opportunity to see firsthand a wide variety of electric appliances and environmentally conscious home upgrades, including energy-efficient heat pumps for heating and cooling, heat pump water heaters, induction cooktops, rainwater catchment systems, compost bins, electric vehicles (EVs), solar panels, battery storage systems, and more. Attendees will also be able to engage with tour hosts to learn about their choices, including financial considerations, rebate programs, contractors, and appliance models.

Click here to reserve a spot on the Home Tour.

Want to participate in the 2025 Tour?
Fill out the Preliminary Intake Form and Acterra will contact you to learn more about your home and what you hope to feature on the tour.

Woodside Library Events

Woodside Library Logo

Visit the Library's Calendar page for more information and to register for individual events.

Library Flyer - September Calendar of Activites

Other Exciting Programs at the Library!

  • The Unseen Peninsula: A Talk With Photographer Robert Buelteman - Saturday, September 13, 10 to 11:30 am

  • Exploring Smartphone Apps: Tools for Health, Entertainment and Everyday Life - Wednesday, October 1, 11 am to 1 pm

Library Flyer - Executive Function and Communication
Library Flyer - American Pitcher Plant

Registration Required!

Click here for more information and to register.

Library Flyer - Cascada de Flores

Community Recreation Opportunities

Photo of Danny Goldberg with Gongs and Singing Bowls

Sound Immersion Experience

with Danny Goldberg

Sessions on Friday September 26, October 24 and November 21
7 to 8 pm at Independence Hall

$45 per session, pre-registration

The Sound Immersion Experience with Gongs and Singing Bowls helps to balance and restore energy in your body. The healing vibrations pass through your body, opening blockages and allowing your mind to find peace within the sound. Through the vibrations of these instruments you can experience an inner calm and deep relaxation that enables you to journey within and center.

Join Danny Goldberg as he leads this experience. Danny shares the healing vibrations of the Gongs and Singing Bowls with a heightened sensitivity offering an extremely effective way to help relax, rejuvenate, and tune inward.

The Sound Immersion Experience with Danny Goldberg presents for Stanford University’s Health Improvement Program, Breathe Together Yoga in Los Gatos, Djerassi Resident Artists Program in Woodside, Peacebank Yoga in Redwood City and various other Bay Area locations. Danny shares the Sound Immersion with Google, LinkedIn, the 49er's, the Raiders, hospitals, recovery centers, veteran's centers and schools, as well as many festivals and conferences including Symbiosis, Beloved, Lightning in a Bottle, Lucidity, Days Between, Hog Farm Hideaway, Science & Non-duality Conference, New Living Expo, Wanderlust & many others.

  • Please register through ACTIVE. 
  • For more details about Danny, visit Danny's website.
Flyer - Myofascial and Yin Yoga Workshop

Myofascial and Yin Yoga Specialty Workshop

Saturday, September 27

9 to 11:30 am at Independence Hall

$55 pre-registration; $65 at the door if space is available

Join Kimberly Paul as she leads a Myofascial and Yin Yoga Workshop. 

  • Learn myofascial techniques using yoga therapy balls to identify “body blind spots” that are overused, underused and misused and potential catalysts for pain and injury.
  • Complemented with yin yoga poses that target soft tissue and joints. This work is necessary and until recently, rather uncharted. Learn more about how to use these techniques and be the architect of your own health and wellness.

Yoga mat and yoga therapy balls are required (and not provided by the instructor). You can purchase a set of yoga therapy balls at Tune Up Fitness. Yoga blocks and blankets are helpful. This is for everybody! No prior yoga experience necessary.

  • Please register for one or more classes through ACTIVE. 
  • For more details about Kimberly, visit Kimberly's website.

Special Dates and Events

  • Mondays: Library - Tai Chi at 11 am
  • Every Second Tuesday: Library - Paws for Tales at 4 pm
  • Sept 13: TCAP Pop-Up Event from Noon to 2 pm
  • Sept 25: TCAP Pop-Up Event from 3 pm to 5 pm
  • Sept 26: Sound Immersion Experience with Danny Goldberg at 7 pm
  • Sept 27: Myofascial and Yin Yoga Specialty Workshop at 9 am
  • Sept 27: Senior Seminar - Choosing Housing Going Forward at 10 am in Atherton
  • Oct 3: First Friday - Bobcats in our Backyard at 7 pm
  • Oct 9: TCAP Community Open House #1 from 6 to 8 pm at Woodside Elementary
  • Oct 11: Day of the Horse - Progressive Trail Ride
  • Oct 12: Day of the Horse - Family-Fun Horse Fair


Town Meetings

  • Sept 15: Architectural and Site Review Board Meeting at 4:30 pm
  • Sept 17: Planning Commission Regular Meeting at 6 pm
  • Sept 23: Town Council Regular Meeting at 7 pm
  • Sept 29: Architectural and Site Review Board Special Meeting at 4:30 pm
  • Oct 1: Planning Commission Meeting Cancelled
  • Oct 6: Architectural and Site Review Board Meeting at 4:30 pm
  • Oct 8: Planning Commission Special Meeting at 6 p
  • Oct 14: Town Council Regular Meeting at 7 pm
  • Oct 15: Planning Commission Regular Meeting at 6 pm


Full list of Town meetings and events:

  • www.woodsideca.gov/


Woodside Library events:

  • Link to ongoing Library Events Calendar.


Woodside Fire Protection District (WFPD) meetings and events:

  • www.woodsidefire.org/

    

Screenshot of Stay Connected button on www.woodsideca.gov

Sign up for Notifications

Subscribe to agendas, calendar events, Town announcements, and more!

To Sign Up:

  • Click on the “Stay Connected” button on the Home Page or go to www.woodsideca.gov/subscribe
  • Click on the "Notify Me Sign In" button
  • Create an account: all users will need to create a new account in the .gov website
  • Sign In: select if you would like text messages and enter your cell number
  • Select Subscriptions: select which emails or text messages to receive; you will see a green checkmark on any lists that you have previously subscribed 

Helpful Tips:

  • Subscribe to all the lists you are interested in at one time! You will receive an email/text message to confirm your subscriptions.
  • Add listserv@civicplus.com to your safe senders list.

Don't forget to follow us on Nextdoor! 


For general questions or comments, please email townhall@woodsideca.gov. 

Share on Facebook
Share on Twitter
Share via Email

Copyright © 2024 Town of Woodside. All Rights Reserved.
2955 Woodside Rd., Woodside CA 94062

Powered by
CivicSend - A product of CivicPlus